BUDYNEK Blok został wybudowany na przełomie lat 70-tych i 80-tych, przeszedł generalny remont w ramach, którego został docieplony, odnowiono klatki schodowe i wymieniono windy. Drzwi wejściowe są wyposażone w domofon, na parterze i w windach jest zainstalowany monitoring.
MIESZKANIE Lokal znajduje się na 11 piętrze skąd roztacza się piękny widok na śródmieście Bielska-Białej oraz góry. (...)
BUDYNEK
Blok został wybudowany na przełomie lat 70-tych i 80-tych, przeszedł generalny remont w ramach, którego został docieplony, odnowiono klatki schodowe i wymieniono windy. Drzwi wejściowe są wyposażone w domofon, na parterze i w windach jest zainstalowany monitoring.
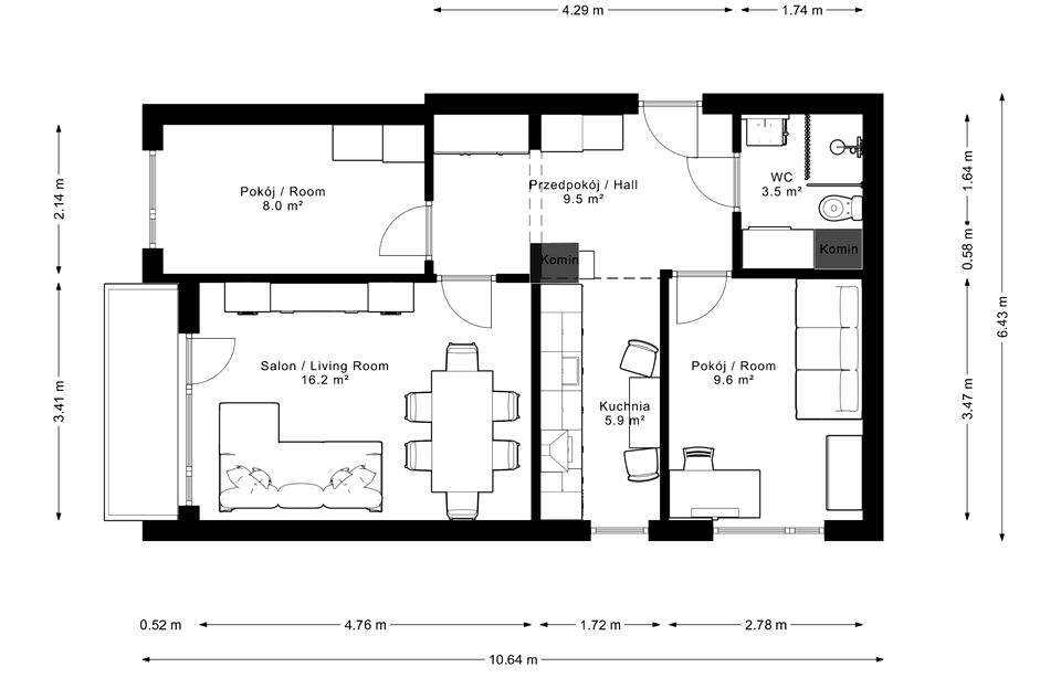
MIESZKANIE
Lokal znajduje się na 11 piętrze skąd roztacza się piękny widok na śródmieście Bielska-Białej oraz góry. Powierzchnia to 53,47 m2
Składa się z:
trzech pokoi dziennego i 2 sypialni
oddzielnej kuchni wyposażonej w sprzęt AGD (lodówka, zmywarka, płyta indukcyjna, piekarnik)
łazienki z pralką, prysznicem i WC
przedpokoju z dużą szafą
słonecznego balkonu z pięknym widokiem na góry
przynależnej tylko dla tego mieszkania komórki lokatorskiej o powierzchni około 3m2 z regałami i oknem
Mieszkanie jest po remoncie, dzięki czemu zyskało nowe, funkcjonalne rozplanowanie, wymieniono instalacje i okna na plastikowe. W pełni umeblowane i wyposażone w drzwi wejściowe antywłamaniowe
LOKALIZACJA I OKOLICA
Budynek usytuowany jest w dobrze skomunikowanej części miasta, z dostępem do licznych parkingów w okolicy. Lokalizacja zapewnia wygodę codziennego życia oraz szybki dostęp do pełnej infrastruktury.
W bezpośrednim sąsiedztwie znajdują się:
tereny zielone w tym Park Ratuszowy i plac zabaw Szósty zmysł
szkoły oraz przedszkola
przychodnia, kościół pw. Opatrzności Bożej
supermarket Netto, sklepy, punkty usługowe i gastronomia
sala koncertowa Cavatina i stadion miejski
przystanki autobusowe
Dodatkowym atutem jest piękny widok na góry oraz bardzo dobre nasłonecznienie mieszkania (ekspozycja południowa i wschodnia).
FINANSE I STAN PRAWNY
Mieszkanie jest wynajmowane z pełnym wyposażeniem.
Cena: 2 150 zł na miesiąc
Kaucja 2 krotny czynsz
Niskie opłaty do spółdzielni - poniżej 900 zł
ZALETY
Widokowy i przestronny balkon
Funkcjonalny układ 3 pokoi
Dodatkowe pomieszczenie (spiżarnia z oknem)
Balkon + piwnica
Świetna lokalizacja w centrum
Idealne dla rodziny, pary
BUILDING
The building was constructed in the late 1970s / early 1980s and has undergone a comprehensive renovation, including thermal insulation, refurbished staircases, and replacement of elevators. The entrance doors are equipped with an intercom system, and CCTV monitoring has been installed on the ground floor and in the elevators to enhance residents' safety.
APARTMENT
The apartment is located on the 11th floor, offering a beautiful view of downtown Bielsko-Biała and the mountains. Total area: 53.47 m²
It consists of:
three rooms a living room and 2 bedrooms
a separate kitchen equipped with household appliances (fridge, dishwasher, induction hob, oven)
a bathroom with a washing machine, shower, and WC
a hallway with a large wardrobe
a sunny balcony with a stunning mountain view
a private storage unit (approx. 3 m²) with shelving and a window, located on the same floor
The apartment has been renovated, resulting in a more functional layout. Electrical and plumbing installations have been replaced, and windows upgraded to PVC. Fully furnished and equipped, with anti-burglary entrance doors.
LOCATION & SURROUNDINGS
The building is situated in a well-connected part of the city, with access to numerous parking spaces nearby. The location ensures everyday convenience and quick access to full infrastructure.
In the immediate vicinity:
green areas, including Park Ratuszowy and the Szósty Zmysł playground
schools and kindergartens
clinic, Church of Divine Providence
Netto supermarket, shops, services, and restaurants
Cavatina concert hall and city stadium
bus stops
An additional advantage is the beautiful mountain view and excellent sunlight exposure (south and east orientation).
FINANCES & LEGAL STATUS
The apartment is currently rented and offered with full equipment
Rent: 2,150 PLN per month
Deposit: equivalent of 2 months rent
Low maintenance fees to the housing cooperative below 900 PLN
ADVANTAGES
Spacious balcony with a view
Functional 3-room layout
Additional storage room (pantry with a window)
Balcony + basement
Excellent central location
Ideal for a family or a couple
Cześć! Zerknij na tę nieruchomość na Nieruchomosci-online.pl!
Cześć! Zerknij na tę nieruchomość na Nieruchomosci-online.pl! https://bielsko-biala.nieruchomosci-online.pl/mieszkanie,m3,z-oddzielna-kuchnia/26617226.html
Czesc! Zerknij na te nieruchomosc na Nieruchomosci-online.pl! https://www.nieruchomosci-online.pl/26617226.html
Czesc! Zerknij na te nieruchomosc na Nieruchomosci-online.pl! https://bielsko-biala.nieruchomosci-online.pl/mieszkanie,m3,z-oddzielna-kuchnia/26617226.html